Белые стены и искусство 43м2
ЖК Арбатский, г. Краснодар
время чтения - 2 минуты

Дизайнер интерьера Диана Кривальцевич
ЖК Арбатский, г. Краснодар
время чтения - 2 минуты

Ко мне обратился молодой мужчина, который живет и работает в Египте, с запросом на проект и реализацию квартиры в Краснодаре для его временного проживания.
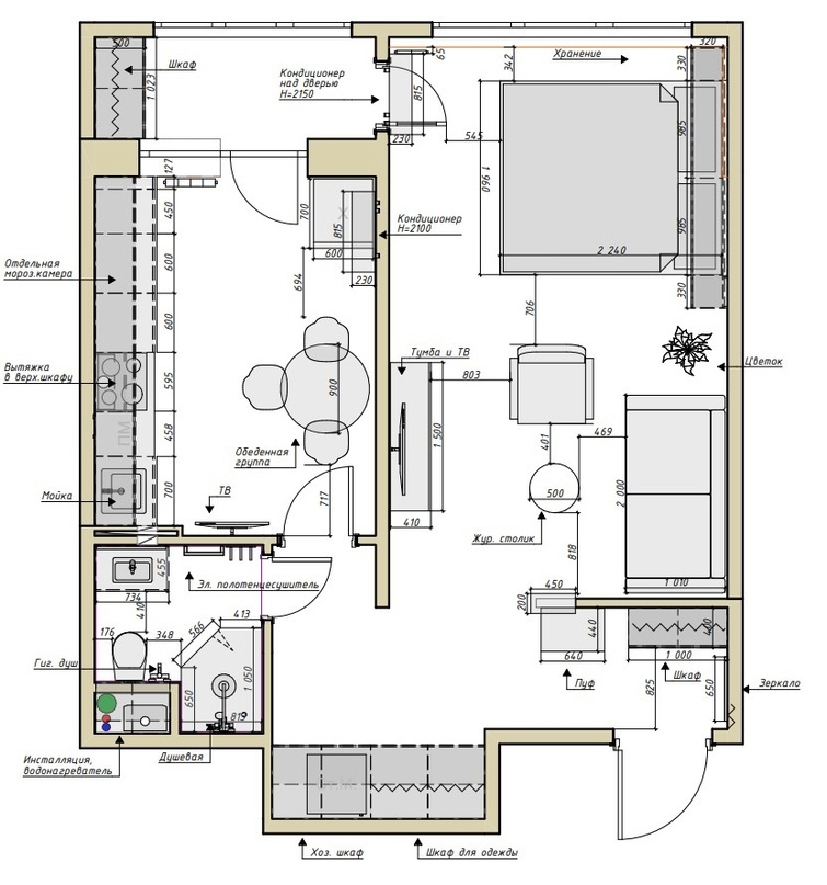
На первой встрече заказчик сказал, что квартира «должна быть его визитной карточкой» и «местом для отдыха». Он четко знал, какой дизайн хочет получить, и сразу обозначил, что хочет белые стены и будет размещать на них разные предметы искусства. Для заказчика было важно создать светлое, открытое пространство, найти место для размещения стиральной и сушильной машин, хранения всех вещей и техники для комфортного проживания.

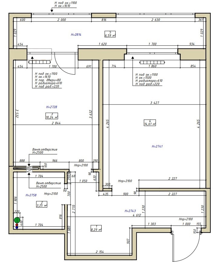
От застройщика мы получили планировку с прихожей, санузлом, комнатой, кухней и большой лоджией на два помещения. Чтобы получить больше жилой площади, мы присоединили часть лоджии.
Это согласованный вариант планировочного решения.

Заказчику очень нравится его квартира, она получилась лаконичной и интересной. Дизайн не напрягает, но притягивает внимание за счет акцентных предметов техники, мебели и искусства.
Мы справились с поставленными задачами и создали комфортное пространство для проживания и встречи с друзьями.
1 из 4
Какой тип Вашего объекта?
2 из 4
Общая площадь объекта?
3 из 4
Из какого Вы города?
4 из 4
Когда Вы планируете начать работу над проектом?
Последний шаг!
На какой номер телефона отправить вам индивидуальный расчёт?